zwei
werkstatt
Herzog · Architekten
Kita
FC St. Pauli
Backoffice
Stadionwache
Theaterzentrum
Wohnen
Galerie
Wohnen Westerau
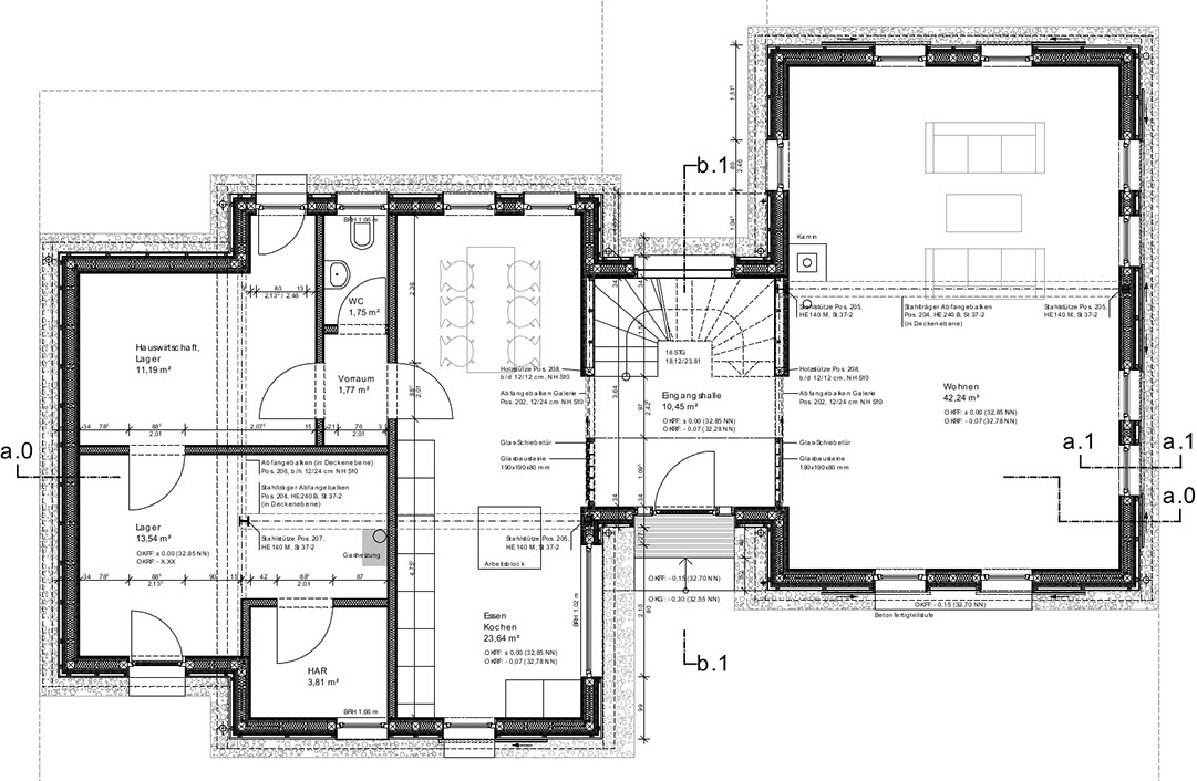
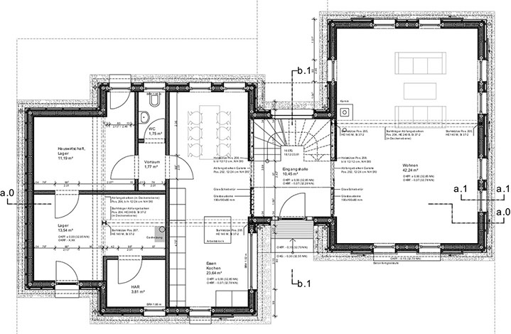
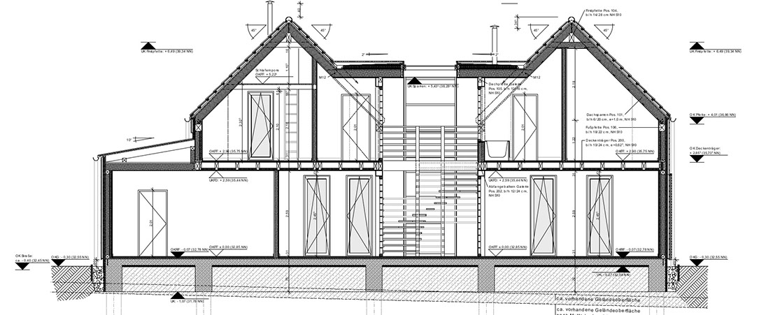
Der Neubau des Einfamilienhauses als Schlussakkord des Dorfes, stellte die Bauherren und uns vor die Aufgabe, einerseits die vorhandene, kleinteilige Dorfstruktur aufzunehmen und andererseits dem Anspruch an moderne, familiäre Lebensräume gerecht zu werden. In engem Austausch mit den Bauherren entstand ein klar parzelliertes Gebäude. Es gibt eigene Bereiche für Eltern und Kinder, die ein gutes Zusammenleben durch alle Altersphasen hindurch ermöglichen. Im Erdgeschoss werden die Zonen miteinander verbunden und es entstehen Gemeinschaftsbereiche. Im zentralen, großflächig verglasten Treppenraum, bildet eine Brücke im Obergeschoss die Verbindung zwischen den beiden Gebäudeteilen. Als Möbel im Raum gestaltet die Treppe das Zentrum des Hauses in besonderer Weise. Die raumhohen Fenster ermöglichen den Ausblick in die Natur. Die unbehandelte Lärchenholzfassade fügt sich mit der Zeit in die gewachsene Umgebung ein. Rote Fassadenplatten setzen starke Akzente, betonen das Zentrum als zeitgenössisches Element.